Halfway through my final year of college, two close friends asked me if I would be interested in designing and building their new home in El Avila National Park. As you can imagine, my answer was ABSOLUTELY!
I had no idea what dealing with the National Guard would be like, nor dealing with engineers and permits. Plus I’d never managed a construction site before, let alone one in a National Park for which I would have to jump into a 4×4 to climb almost 3,000 feet up the mountain every morning to meet with the construction crew. I had been given the opportunity of a lifetime, and I didn’t care how difficult it would be, somehow I’d get it done!
To study the design in-depth, I decided to turn the project into my graduation thesis project. Given that it was to be located in a National Park, sustainable design became a huge driver behind the project. I presented my thesis in April 2005 and construction began a few days later.
The project turned out to be the experience of a lifetime. Taking a project from preliminary concept to a finished home with full responsibility for its construction in a demanding terrain with even more demanding logistical challenges was beyond incredible!
I will never fully understand why my friends put so much faith in me at a point in my career when I only theoretical experience on my resume, but I will be forever grateful nevertheless.
A little more of the story in an interview with our amazing clients.
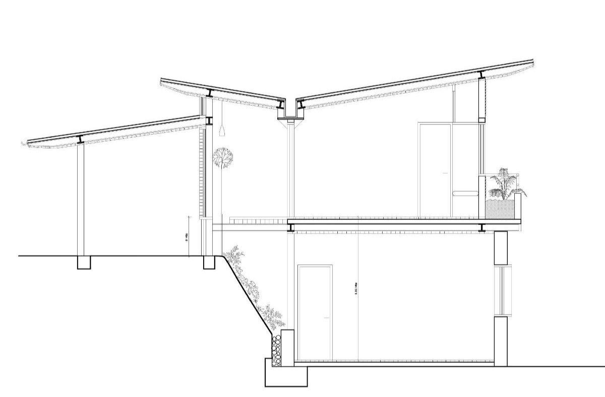
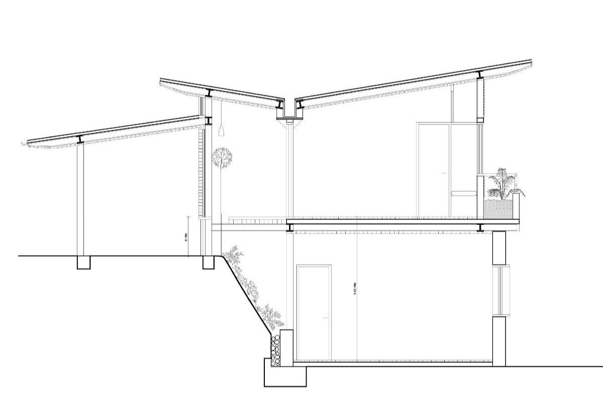
Preliminary Conceptual sketch and detailed drawings.
Presenting the project @ my Alma mater “Universidad Simon Bolivar”








